Patrový dům Simona

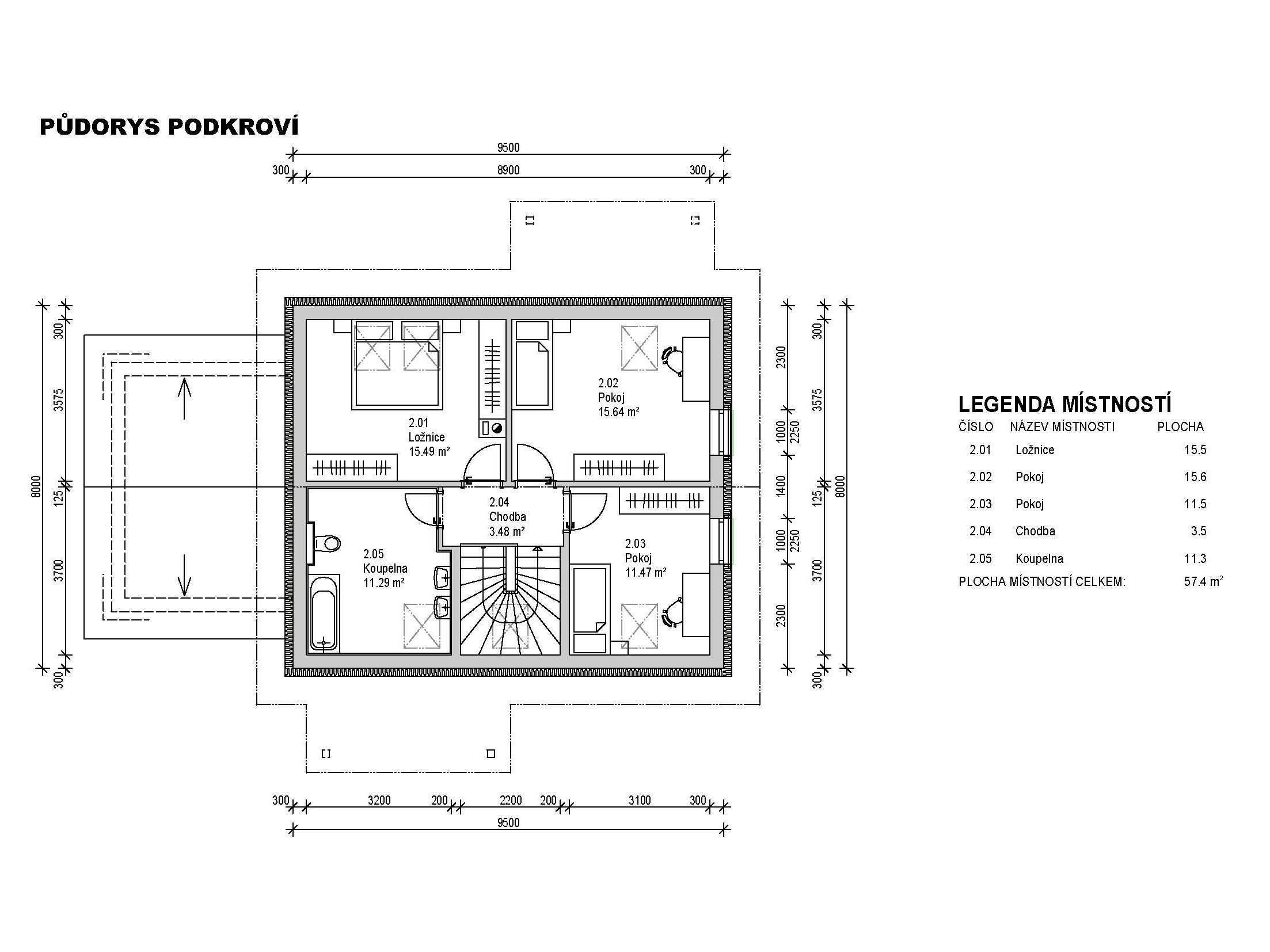
Moderní rodinný dům Simona nabízí komfortní bydlení až pro pětičlennou rodinu v souladu s moderními trendy. Ve spodním patře naleznete společenskou místnost s kuchyňským koutem, ze které snadno vstoupíte na terasu. Nechybí pokoj pro hosty či pracovna a chodba. Podkroví domu je čistě klidové a k dispozici nabízí hlavní ložnici a dva neprůchozí dětské pokoje. Samozřejmostí je koupelna s toaletou v každém patře domu. Auto pohodlně zaparkujete v garáži hned u domu.

Co obsahuje hrubá stavba s dostavbou
  • Základové konstrukce do převýšení stavby 0,5 m
  • Obvodové zdivo, příčky, strop, schodiště a komín
  • Nadstandardní řešení střechy s půdním prostorem
  • Nízkoenergetická 7-mi komorová okna s trojsklem
  • 10 let záruka na konstrukční systém stavby
  • Stavební část projektové dokumentace zdarma
  • Technický dozor po zbytek stavby
Obecné informace
Užitná plocha
134,5 m2
Zastavěná plocha
100 m2
Dispozice
5+KK s garáží
Rozměry domu
13,5x8 m
Cena domu

S ohledem na cenovou dostupnost nabízíme různé možnosti provedení stavby. Oblíbenou volbou bývá hrubá stavba s asistovanou dostavbou. Napište nám, pokud chcete dům v našem regionu rádi Vám zpracujeme nabídku přímo pro Vás zdarma.

Hrubá stavba s dostavbou

Zdarma na požádání Kč vč. 15% DPH

Celková orientační cena domu

Zdarma na požádání Kč vč. 15% DPH