Rodinný dům Gabriela

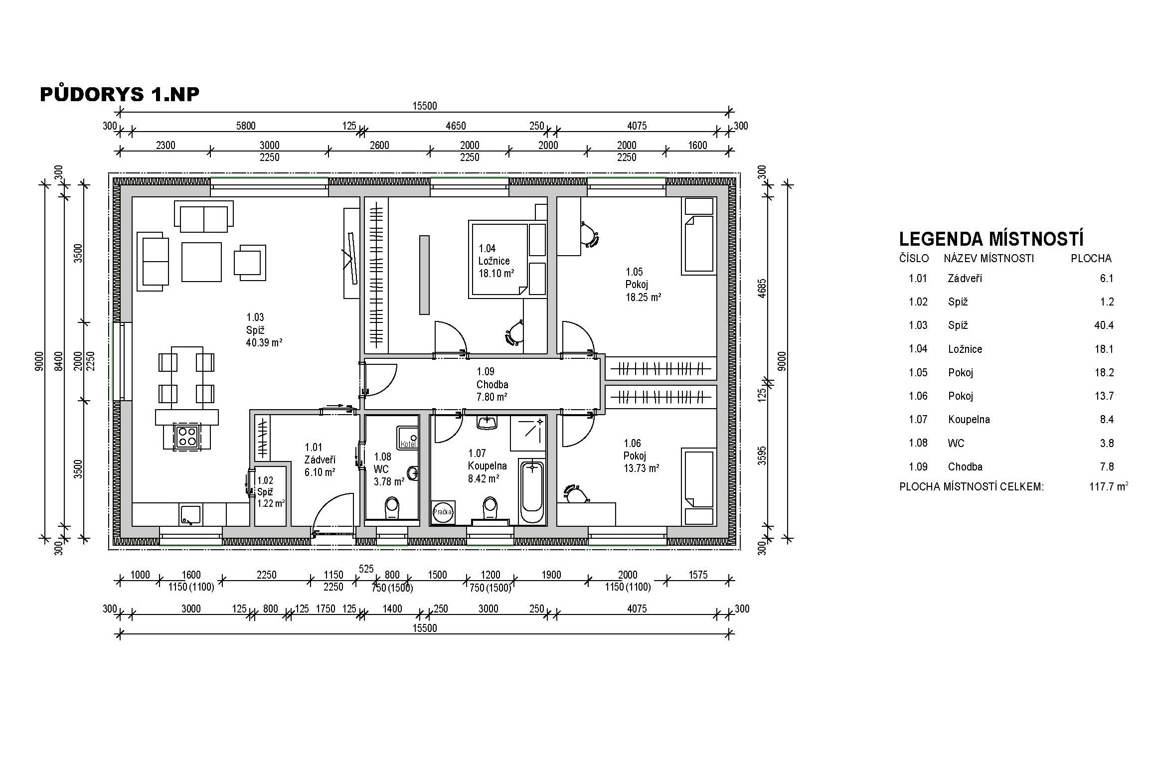
Rodinný dům Gabriela následuje trendy současné skandinávské architektury a nízkoenergetického standartu bydlení moderní rodiny. Půdorys má jednoduchý obdélníkový tvar. V domě se netradičně ze zádveří vstupuje přímo do obývacího pokoje, který je spojený s kuchyňským koutem a varnou deskou v prostoru. Středem domu prochází chodba spojující denní část se všemi dalšími prostory. Druhá polovina domu je navržena jako klidová. Z chodby máte přímý vstup do ložnice a dvou dětských pokojů. Rovněž je přístupná i velká koupelna s toaletou, umyvadlem,
sprchovým koutem a vanou. Jednu samostatnou toaletu naleznete v zádveří domu.

Co obsahuje hrubá stavba s dostavbou
  • Základové konstrukce do převýšení stavby 0,5 m
  • Obvodové zdivo, příčky a komín
  • Nadstandardní řešení střechy s půdním prostorem
  • Nízkoenergetická 7-mi komorová okna s trojsklem
  • 10 let záruka na konstrukční systém stavby
  • Stavební část projektové dokumentace zdarma
  • Technický dozor po zbytek stavby
Obecné informace
Užitná plocha
117,7 m2
Zastavěná plocha
139,5 m2
Dispozice
4+KK
Rozměry domu
15,5x9 m
Cena domu

S ohledem na cenovou dostupnost nabízíme různé možnosti provedení stavby. Oblíbenou volbou bývá hrubá stavba s asistovanou dostavbou. Napište nám, pokud chcete dům v našem regionu rádi Vám zpracujeme nabídku přímo pro Vás zdarma.

Hrubá stavba s dostavbou

Zdarma na požádání Kč vč. 15% DPH

Celková orientační cena domu

Zdarma na požádání Kč vč. 15% DPH